Remodelación
Ficha Técnica:
Planta Baja:
- Acceso
- 1/2 Baño
- Cocina
- Patio posterior
Planta Alta:
- Sala de TV
- Baños en todas las recámaras
- Vestidor en recámara principal
- Terraza a patio posterior
Planta Azoteas:
- Cuarto de lavado
- Roof Garden
Detalles de construcción:
- Construcción: 470 m2
- Terreno: 200 m2
- Niveles: 3
- Ubicación: Col. Las Americas, Estado de México.
- Inversión: $1,200,000.00
- Año: 2013
Descripción del proyecto:
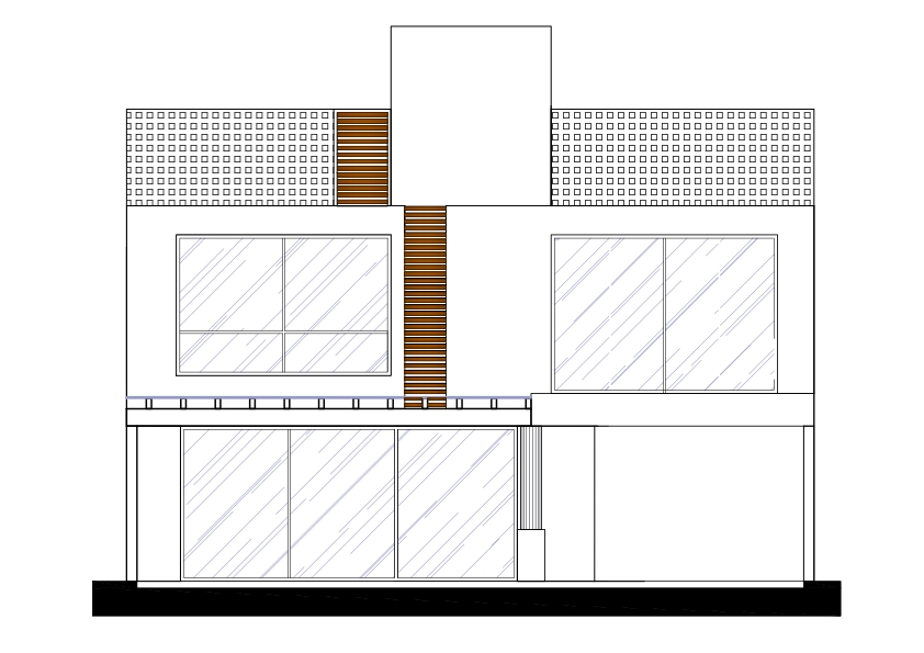
Proyecto de remodelación en casa habitación con estilo de los 80´s para convertirla a un estilo más adecuado a la época a petición de los dueños y con ciertos cambios en el interior de acuerdo a sus necesidades.
Arquitectura moderna, de trazos sencillos y elegantes, con excelente iluminación natural y acabados de tipo residencial.
En este proyecto se modifico la planta baja cambiando el acceso principal modificando así la fachada; el medio baño de la planta baja fue modificado para que quede más amplio, además de que se cambiaron acabados y mobiliario; la cocina se modifico para modernizarla con acabados y mobiliario con diseños únicos; toda la planta baja fue remodelada en cuanto a acabados, canceleria y carpinterias.
En la planta alta, se agregaron baños para cada dormitorio, además de un vestidor en el baño de la recamara principal, se modifico la terraza para hacerla más moderna; e igual que en planta baja, se cambiaron acabados, mobiliario, carpinterias y cancelerias en toda la planta.
Finalmente, en la planta de azoteas se mejoro el diseño del área de lavado y se diseño un roof garden para darle un estilo más moderno y sustentable.









































