Obra nueva

Ficha Técnica:

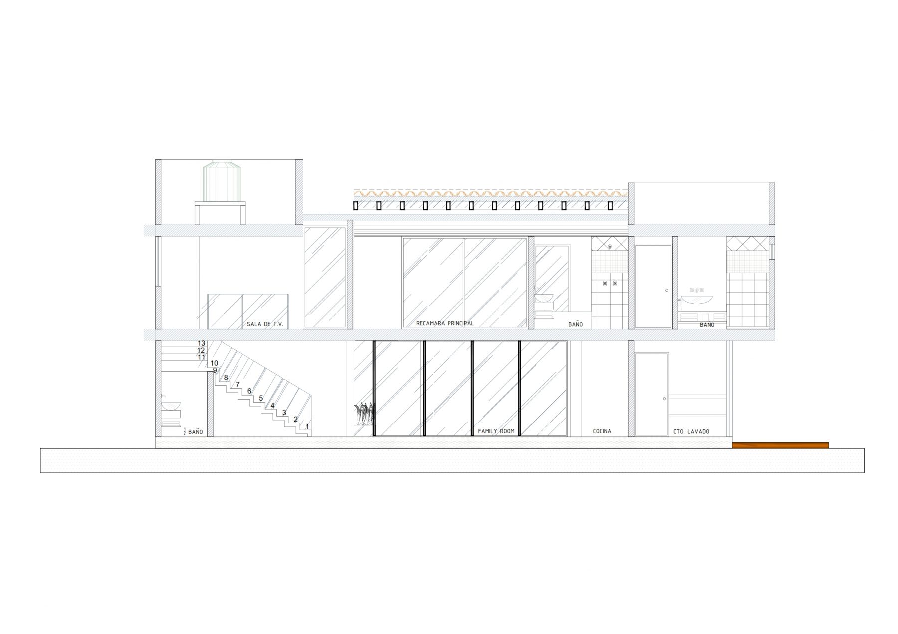
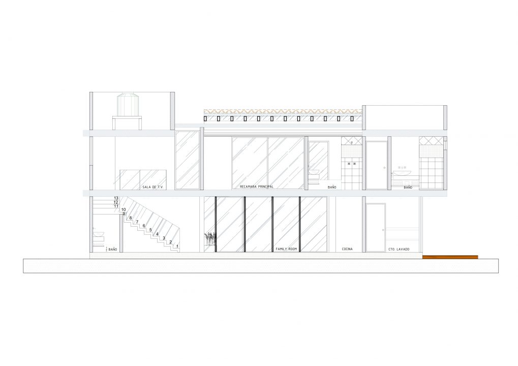
Planta Baja:

  • Estancia
  • Comedor
  • Family Room
  • Estudio
  • Cocina equipada
  • 1/2 Baño
  • Cuarto de servicio con baño completo
  • Terraza desayunador
  • Jardín posterior
  • Cisterna de 10m3
  • 3 cajones de estacionamiento
  • Jardín principal
  • Fuente en acceso

Planta Alta:

  • Sala de TV
  • Recámara principal con vestidor y baño completo con tina.
  • Recámara 1 con terraza
  • Recámara 2 con terraza
  • Baño completo compartido

Detalles de construcción:

  • Construcción: 258 m2
  • Terreno: 400 m2
  • Niveles: 2
  • Ubicación: Hacienda San Antonio, La Gavia, Metepec, Estado de México.
  • Inversión: $2,300,000.00
  • Año: 2018

Descripción del proyecto:

Proyecto de obra nueva estilo minimalista para casa habitación nivel alto residencial en el exclusivo conjunto habitacional Hacienda San Antonio en Metepec, Estado de México.


Proceso de Construcción


Obra Terminada


Proyecto

  • Compartir:
  • Share: