Remodelación, Ampliación y Mejoras
Ficha Técnica:
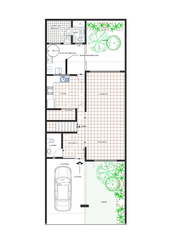
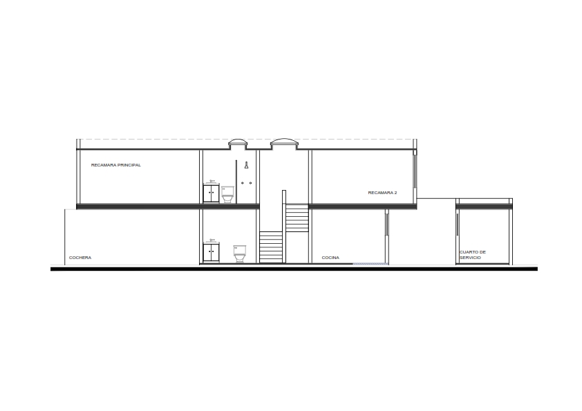
Planta baja:
Sala.
Comedor.
Cocina equipada.
½ Baño.
Cuarto de servicio con ½ Baño.
Jardín posterior.
Estacionamiento
Jardín principal.
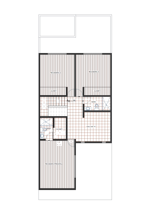
Planta Alta.
Sala de TV.
Recamara principal con vestidor, baño completo con tina.
Recamara 1
Recamara 2 con Baño completo y vestidor
Baño completo compartido.
Detalles del inmueble:
- Construcción: 195 m2
- Terreno: 160.00 m2
- Niveles: 2
- Ubicación: Toluca, Estado de México,
- Inversión: $365,000.00
Descripción de los trabajos
FICHA TÉCNICA O EQUIPAMIENTO:
- Demolición de piso de loseta de cerámica en distintas áreas, de azulejos en baños y cocina.
- Retiro de alfombras en distintas áreas sin recuperación.
- Desmantelamiento de mobiliario en baños y cocina.
- Desmantelamiento de herrería y retiro de ventanas y protecciones metálicas de herrería y domos de cristal; puertas de acceso de estacionamiento, acceso peatonal y de jardín.
- Suministro y colocación de mobiliario en baños.
- Suministro y colocación de cocina integral.
- Suministro y colocación de luminarias y apagadores, respetando la instalación existente.
- Suministro y colocación de boiler de paso Mca. Calorex o similar, de 2 1/2 servicios
- Suministro y colocación de piso cerámico porcelanato de 50 * 50 cm. en interiores Marca Interceramic, color beige.
- Suministro y colocación de recubrimiento en muros de baño de 40 * 60 cm. En interiores Marca Interceramic; color beige.
- Suministro y aplicación de pintura vinílica Marca. Comex línea vinimex color blanco, sobre muros interiores y exteriores y plafones.
- Suministro y colocación de ventanas de dimensiones diferentes de aluminio natural de 2″ y 3″‘, para cristal claro de 6mm.
- Rehabilitación y mantenimiento de puertas de herrería para acceso vehicular, peatonal y jardín.
- Suministro y fabricación de cubierta de estructura metálica en área de estacionamiento a base de perfil tubular rectangular de 1″ * 2″ y largueros de solera de 1/4″ de espesor, cubierto con panel de tablacemento.
- Elaboración de escalera circular de servicio a base de perfil angular de 1/2″. En desarrollo de 60 cm.
- Mantenimiento en puerta principal y puertas interiores de madera que consiste en: Raspado y lijado en superficies y cantos.
- Mantenimiento en closets.
- Suministro y colocación de piso laminado de 12 mm de espesor acabado pulido y esmaltado.
*Todos los electrodomésticos y equipos sanitarios cumplen con la norma y certificación para hipoteca verde.




































